Campus Norte

Anuncian construcción de nuevo edificio para la Facultad de Ciencias Químicas y Farmacéuticas

Decano de Ciencias Químicas anuncia nuevo edificio para su Facultad
Así será el nuevo edificio de la Facultad de Ciencias Químicas y Farmacéuticas.
Así será el nuevo edificio de la Facultad de Ciencias Químicas y Farmacéuticas.
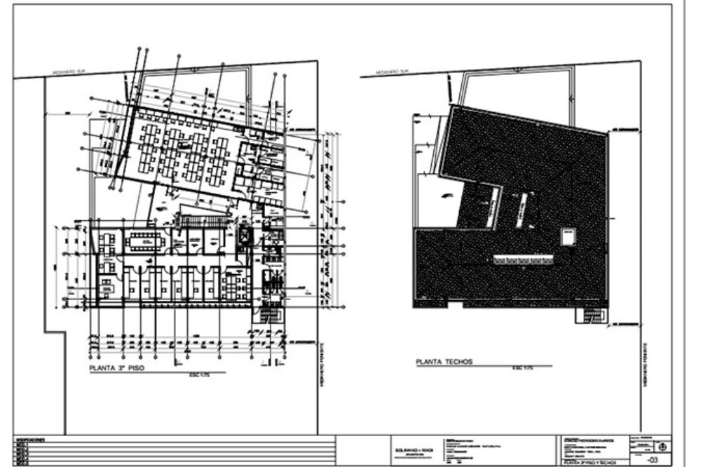
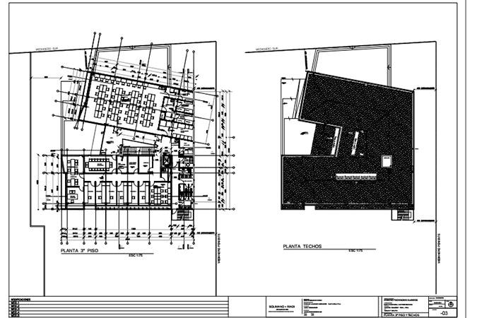
Planos del futuro edificio que está listo el 2017.
Planos del futuro edificio que está listo el 2017.
El Decano Arturo Squella dando la cuenta pública de su gestión.
El Decano Arturo Squella dando la cuenta pública de su gestión.
El viernes 23 de enero se realizó la actividad.
El viernes 23 de enero se realizó la actividad.

En la pasada Cuenta de Gestión realizada el viernes 23 de enero, el Decano de la Facultad de Ciencias Químicas y Farmacéuticas, Prof. Arturo Squella Serrano, anunció oficialmente a la comunidad la construcción del tercer edificio de la Facultad, que llevará el nombre de “Profesores Eméritos”.

El proyecto estará especialmente diseñado para mejorar y optimizar la infraestructura para la investigación y docencia de Postgrado, mediante la construcción de laboratorios húmedos, salas de estudio e instalaciones administrativas, abriendo un espacio nuevo y moderno para los actuales y futuros estudiantes. 

En referencia a este nuevo proyecto de la Facultad, el Decano, Prof. Arturo Squella, señaló que “es un proyecto ambicioso que nos permitirá solventar las necesidades del Postgrado. Este edificio ayudará a tener instalaciones de primer nivel, tanto para la parte administrativa, como educacional y de investigación. Sumado a eso, dedicaremos un gran espacio al Proyecto FONDAP ACCDiS, del Prof. Sergio Lavandero, que permite evaluar las enfermedades crónicas a 10 mil chilenos durante diez años”.

En este sentido, el Director de Postgrado de la Facultad de Ciencias Químicas y Farmacéuticas de la Universidad de Chile, Prof. Pablo Richter, demostró su alegría y satisfacción por este proyecto. “Hoy el Postgrado tiene salas distribuidas por toda la Facultad, entre Biblioteca, Aulario, y los distintos edificios que nos han prestado apoyo. Este proyecto viene a consolidar el crecimiento sostenido de los Doctorados, Magíster y Postítulo, aglutinándonos en un solo espacio que contará con salas más grandes y espacios óptimos para la investigación”.

Junto al Postgrado, el nuevo edificio también albergará los laboratorios del Proyecto FONDAP ACCDiS y una cafetería, en un total de 1.411 mt2. El costo total de la inversión será alrededor de 36.000 UF y se pretende que esté operativo para el año 2017.

La Cuenta de Gestión 2014

Junto al anuncio del edificio, el Decano de la Facultad entregó a conocimiento público las principales inversiones y detalló las 161 Publicaciones ISI, las más de 77 actividades tanto de extensión como de otras unidades y las 13 nuevas obras de construcción.

Entre los proyectos más llamativos del año 2014 estuvo la rearticulación de la Innovación Curricular perteneciente a la Dirección Académica, que permitirá contar con nuevas mallas para las carreras el próximo 2016, y la creación de la Unidad Integral de Enseñanza y Aprendizaje, donde se reforzó el vínculo educacional y el apoyo que la Facultad otorga a los actuales estudiantes.

En este sentido, el Decano señaló que “Las frías cifras son reflejo del esfuerzo y el trabajo de muchos, quienes entregan todo de sí para que esta Facultad en particular y la Universidad en general, sean cada día mejor. Vaya entonces mi agradecimiento a todos los integrantes de la comunidad universitaria de esta unidad académica, por los esfuerzos entregados para concretar éxitos durante el pasado año 2014”.

La Cuenta de Gestión puede descargarse acá.